2008
baden-württemberg,
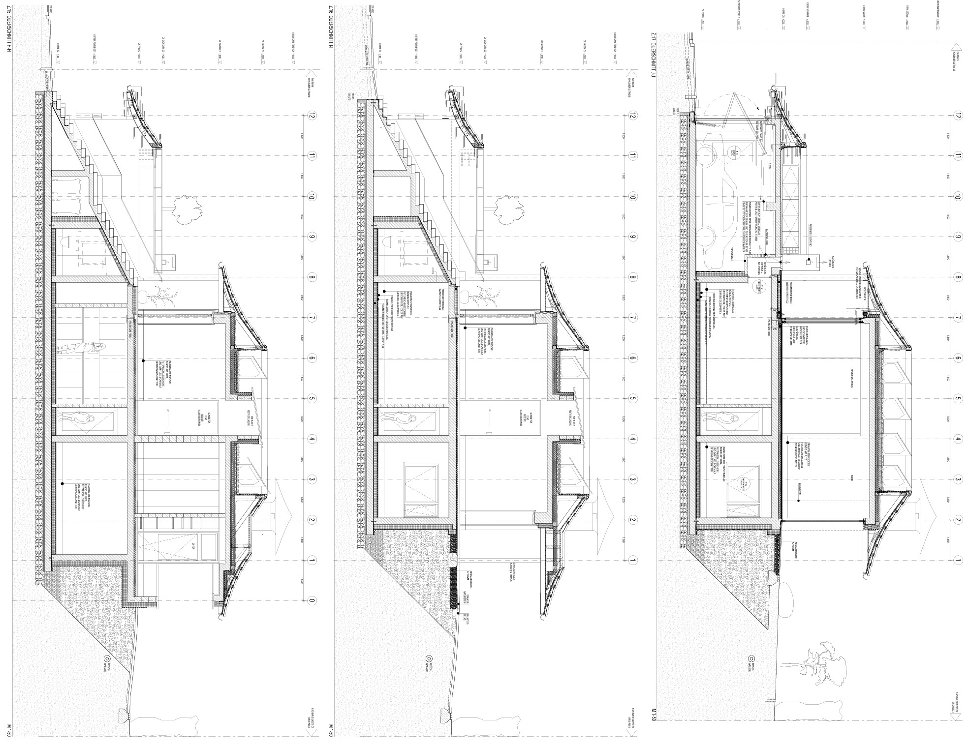
haus 2 wohneinheiten
In der Nähe des südlichen Schwarzwalds wurde im ländlichen Umfeld ein Haus für 2 ältere Ehepaare realisiert.




Zeichnungen
einblicke

In der Nähe des südlichen Schwarzwalds wurde im ländlichen Umfeld ein Haus für 2 ältere Ehepaare realisiert.





Wir benötigen Ihre Zustimmung zum Laden der Übersetzungen
Wir nutzen einen Drittanbieter-Service, um den Inhalt der Website zu übersetzen, der möglicherweise Daten über Ihre Aktivitäten sammelt. Bitte überprüfen Sie die Details in der Datenschutzerklärung und akzeptieren Sie den Dienst, um die Übersetzungen zu sehen.