2005
berlin-schöneberg
gründerzeitliches mehrfamilienhaus,
22 wohneinheiten
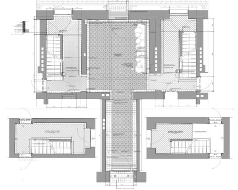
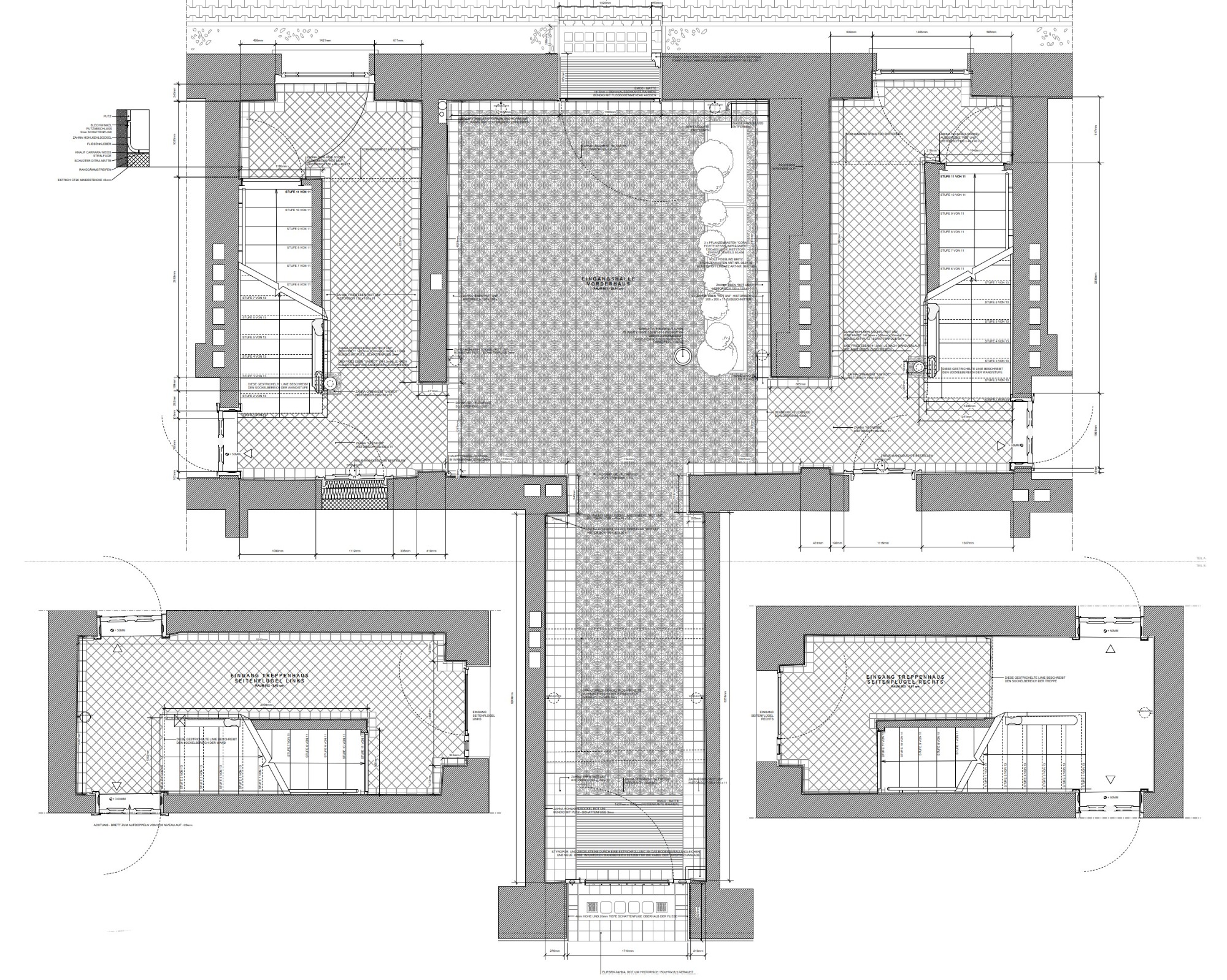
Sanierung Garten, Errichtung Kinderspielecke, Neugestalltung Müllstandort, Sanierung der Eingangshalle inkl. Fliesenspiegel, Pflanzen, Putz, Maler, Tischler, Kokosläufer, Stuck, neue Beleuchtung,
Sanierung der 4 Treppenhäuser inkl. großformatigem Fensteraustausch zur besseren Reinigungsmöglichkeit.




ausblicke



Zeichnungen
Fliesenspiegel Zahna Fliesen mit wandbündigem Hohlkehlsockel











